Приказ Минкультуры России от 22.12.2025 N 2400
МИНИСТЕРСТВО КУЛЬТУРЫ РОССИЙСКОЙ ФЕДЕРАЦИИ
ПРИКАЗ
от 22 декабря 2025 г. N 2400
ОБ УТВЕРЖДЕНИИ ПРЕДМЕТА
ОХРАНЫ ОБЪЕКТА КУЛЬТУРНОГО НАСЛЕДИЯ ФЕДЕРАЛЬНОГО ЗНАЧЕНИЯ
"КОРПУС ЛИХУДОВ", XVII - XVIII ВЕКА, ВХОДЯЩЕГО В СОСТАВ
ОБЪЕКТА КУЛЬТУРНОГО НАСЛЕДИЯ ФЕДЕРАЛЬНОГО ЗНАЧЕНИЯ "АНСАМБЛЬ
НОВГОРОДСКОГО КРЕМЛЯ", XI - XX ВЕКА (НОВГОРОДСКАЯ ОБЛАСТЬ,
Г. ВЕЛИКИЙ НОВГОРОД, КРЕМЛЬ)
Руководствуясь Федеральным законом от 25 июня 2002 г. N 73-ФЗ "Об объектах культурного наследия (памятниках истории и культуры) народов Российской Федерации" и подпунктом 5.3.6 Положения о Министерстве культуры Российской Федерации, утвержденного постановлением Правительства Российской Федерации от 20 июля 2011 г. N 590, приказываю:
1. Утвердить прилагаемый предмет охраны объекта культурного наследия федерального значения "Корпус Лихудов", XVII - XVIII века, расположенного по адресу: Новгородская область, г. Великий Новгород, Кремль, строение 13.
2. Департаменту государственной охраны культурного наследия (Р.А. Рыбало) обеспечить внесение соответствующих сведений в единый государственный реестр объектов культурного наследия (памятников истории и культуры) народов Российской Федерации и их опубликование.
3. Контроль за исполнением настоящего приказа оставляю за собой.
Первый заместитель Министра
С.Г.ОБРЫВАЛИН
Приложение
к приказу Министерства культуры
Российской Федерации
от 22 декабря 2025 г. N 2400
ПРЕДМЕТ
ОХРАНЫ ОБЪЕКТА КУЛЬТУРНОГО НАСЛЕДИЯ ФЕДЕРАЛЬНОГО ЗНАЧЕНИЯ
"КОРПУС ЛИХУДОВ", XVII - XVIII ВЕКА, ВХОДЯЩЕГО В СОСТАВ
ОБЪЕКТА КУЛЬТУРНОГО НАСЛЕДИЯ ФЕДЕРАЛЬНОГО ЗНАЧЕНИЯ "АНСАМБЛЬ
НОВГОРОДСКОГО КРЕМЛЯ", XI - XX ВЕКА (НОВГОРОДСКАЯ ОБЛАСТЬ,
Г. ВЕЛИКИЙ НОВГОРОД, КРЕМЛЬ)
Градостроительные характеристики здания:
местоположение и градостроительные характеристики здания XVII - XVIII века, его роль в композиционно-планировочной структуре архитектурного ансамбля Новгородского Кремля;
ценные видовые раскрытия здания XVII - XVIII века, в структуре архитектурного ансамбля Новгородского Кремля и с территории Владычного двора.
Архитектурные характеристики и конструктивные элементы объекта:
объемно-пространственная композиция двухэтажного с полуподвалом здания XVII - XVIII века, прямоугольного в плане, с деревянным крыльцом с лестницей конца XX века у восточного фасада, включая высотные отметки по венчающим карнизам (с учетом реставрации 1985 - 2000-х гг.);
крыша: конфигурация, материал, характер кровельного покрытия, включая высотные отметки по конькам кровли, а также вентиляционные трубы и их оформление (с учетом реставрации 1985 - 2000-х гг.);
композиционное решение и архитектурно-художественное оформление фасадов здания в редакции XVII века, включая размер, форму, местоположение и оформление оконных и дверных проемов, в том числе: прямоугольные ниши окон первого этажа со ступенчатыми полочками над перемычками; фигурные перспективные наличники окон второго этажа с наборными колонками и килевидными навершиями; фриз с "бегунцом" и рядами "поребрика", прерываемый щелевидными оконными проемами сушила (чердака) на восточном фасаде; венчающие профилированные карнизы; два закладных каменных креста у окон первого этажа и т.д. (с учетом реставрации 1985 - 2000-х гт.);
материал и характер отделки фасадных поверхностей: гладкая штукатурка с побелкой;
колористическое решение фасадов (уточняется по результатам реставрационных исследований и раскрытий);
характер столярных заполнений оконных и дверных проемов в редакции XVII века;
пространственно-планировочная структура здания в пределах капитальных стен, прямоугольных и арочных проемов, перекрытий XVII века (с учетом реставрации 1985 - 2000-х гг.);
капитальные стены и перекрытия XVII века: конструкция и материал, включая сводчатые перекрытия с распалубками (с учетом реставрации 1985 - 2000-х гг.);
деревянное крыльцо с лестницей со стороны восточного фасада: местоположение, конструкции, материал и оформление (с учетом реставрации 1985 - 2000-х гг.).
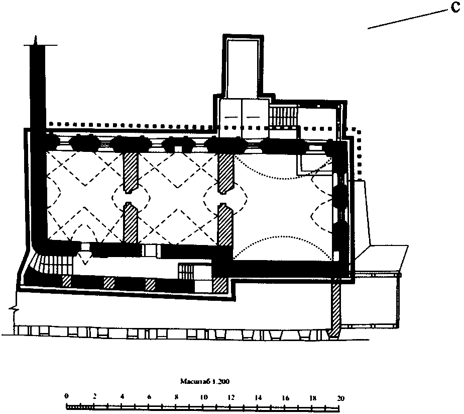
Схема предмета охраны объекта культурного наследия
федерального значения "Корпус Лихудов", XVII - XVIII века,
входящего в состав объекта культурного наследия федерального
значения "Ансамбль Новгородского Кремля", XI - XX века
(Новгородская область, г. Великий Новгород, Кремль)
ПОЛУПОДВАЛ

УСЛОВНЫЕ ОБОЗНАЧЕНИЯ:

-
объемно-пространственная композиция здания.

-
Композиция и архитектурно-художественное оформление фасадов.
![]()
-
Пространственно-планировочная структура в пределах капитальных стен, проемов, перекрытий.

-
Капитальные стены, перекрытия.
![]()
-
Сводчатые перекрытия, арки, перемычки проемов.
![]()
-
Лестницы.
1 ЭТАЖ

УСЛОВНЫЕ ОБОЗНАЧЕНИЯ:

-
объемно-пространственная композиция здания.

-
Композиция и архитектурно-художественное оформление фасадов.
![]()
-
Пространственно-планировочная структура в пределах капитальных стен, проемов, перекрытий.

-
Капитальные стены, перекрытия.
![]()
-
Сводчатые перекрытия, арки, перемычки проемов.
![]()
-
Крыльцо
2 ЭТАЖ

УСЛОВНЫЕ ОБОЗНАЧЕНИЯ:

-
объемно-пространственная композиция здания.

-
Композиция и архитектурно-художественное оформление фасадов.
![]()
-
Пространственно-планировочная структура в пределах капитальных стен, проемов, перекрытий.

-
Капитальные стены, перекрытия.
![]()
-
Сводчатые перекрытия, арки, перемычки проемов.
![]()
-
Крыльцо