Приказ Минкультуры России от 19.02.2020 N 233
МИНИСТЕРСТВО КУЛЬТУРЫ РОССИЙСКОЙ ФЕДЕРАЦИИ
ПРИКАЗ
от 19 февраля 2020 г. N 233
ОБ УТВЕРЖДЕНИИ ПРЕДМЕТА
ОХРАНЫ ОБЪЕКТОВ КУЛЬТУРНОГО НАСЛЕДИЯ ФЕДЕРАЛЬНОГО ЗНАЧЕНИЯ,
ВХОДЯЩИХ В СОСТАВ ОБЪЕКТА КУЛЬТУРНОГО НАСЛЕДИЯ ФЕДЕРАЛЬНОГО
ЗНАЧЕНИЯ "АНСАМБЛЬ УСАДЕБНОЙ ЗАСТРОЙКИ УЧАСТКА УЛИЦЫ
ВОЛХОНКИ", ВТОРАЯ ПОЛОВИНА XVII - XIX ВЕКА
Руководствуясь Федеральным законом от 25.06.2002 N 73-ФЗ "Об объектах культурного наследия (памятниках истории и культуры) народов Российской Федерации", подпунктом 5.3.6 пункта 5.3 и подпунктом 5.4.3 пункта 5.4 Положения о Министерстве культуры Российской Федерации, утвержденного постановлением Правительства Российской Федерации от 20.07.2011 N 590, пунктом 13 Порядка определения предмета охраны объекта культурного наследия, включенного в единый государственный реестр объектов культурного наследия (памятников истории и культуры) народов Российской Федерации в соответствии со статьей 64 Федерального закона от 25.06.2002 N 73-ФЗ "Об объектах культурного наследия (памятниках истории и культуры) народов Российской Федерации", утвержденного приказом Минкультуры России от 13.01.2016 N 28, на основании представленных ФГБУК "Государственный музей изобразительных искусств имени А.С. Пушкина" (обращение от 11.02.2020 N 053-УКС), проектной документации по определению предмета охраны объекта, разработанной АО "СмартИнжиниринг" и с учетом решения Научно-методического совета по культурному наследию при Минкультуры России (выписка из протокола заседания секции "Памятники архитектуры" от 06.02.2020), приказываю:
1. Утвердить прилагаемые предметы охраны объектов культурного наследия федерального значения:
1.1. "Каретный сарай с амбаром", 1788 год, 1810 год, 1830-е годы, (г. Москва, ул. Волхонка, д. 8, строение 7);
1.2. "Жилой корпус", 1788 год, 1804 год, 1884 - 1889 годы, (г. Москва, ул. Волхонка, д. 8, строение 9);
1.3. "Северо-восточный корпус", 1806 год, 1850 год, (г. Москва, ул. Волхонка, д. 8, строение 10);
1.4. "Жилой корпус", 1810-е годы, 1816 год, (г. Москва, ул. Волхонка, д. 8, строение 11);
1.5. "Палаты думного дворянина Полтева", вторая половина XVII века, (г. Москва, ул. Волхонка, д. 8-10/2, строение 8);
согласно приложениям к Приказу.
2. Приказы Минкультуры России от 25.02.2019 NN 204, 205, 206, 207, 208 признать утратившими силу.
3. Департаменту государственной охраны культурного наследия (Р.А. Рыбало) обеспечить внесение соответствующих изменений в единый государственный реестр объектов культурного наследия (памятников истории и культуры) народов Российской Федерации и их опубликование.
4. Контроль за исполнением настоящего приказа оставляю за собой.
Заместитель Министра
С.Г.ОБРЫВАЛИН
Приложение N 1
к приказу Министерства культуры
Российской Федерации
от 19.02.2020 N 233
ПРЕДМЕТ
ОХРАНЫ ОБЪЕКТА КУЛЬТУРНОГО НАСЛЕДИЯ ФЕДЕРАЛЬНОГО ЗНАЧЕНИЯ
"КАРЕТНЫЙ САРАЙ С АМБАРОМ", 1788 ГОД, 1810 ГОД, 1830-Е
ГОДЫ, ВХОДЯЩЕГО В СОСТАВ ОБЪЕКТА КУЛЬТУРНОГО НАСЛЕДИЯ
ФЕДЕРАЛЬНОГО ЗНАЧЕНИЯ "АНСАМБЛЬ УСАДЕБНОЙ ЗАСТРОЙКИ
УЧАСТКА УЛИЦЫ ВОЛХОНКИ", ВТОРАЯ ПОЛОВИНА XVII - XIX
ВЕКА (Г. МОСКВА)
Градостроительные характеристики:
- градостроительные характеристики здания и его роль в композиционно-планировочной структуре владения;
Архитектурные и конструктивные характеристики:
- объемно-пространственная композиция здания, сложившаяся к середине XIX века, включая высотные отметки по венчающему карнизу;
- конфигурация крыши, характер кровельного покрытия, высотные отметки конька кровли;
- композиционное решение и архитектурно-художественное оформление фасадов, включая местоположение и оформление оконных и дверных проемов на середину XIX века;
- материал и характер деревянных заполнений оконных и дверных проемов на середину XIX века;
- колористическое решение фасадов середины XIX века;
- материал и характер отделки фасадных поверхностей: штукатурка, покраска;
- пространственно-планировочная структура интерьера здания в пределах капитальных стен, плоских и сводчатых перекрытий;
- конструкция и материал капитальных стен;
- сводчатые перекрытия, их конструкция и материал.
Схема предмета охраны объекта культурного наследия
федерального значения "Каретный сарай с амбаром", 1788 год,
1810 год, 1830-е годы, входящего в состав объекта
культурного наследия федерального значения "Ансамбль
усадебной застройки участка улицы Волхонки", вторая
половина XVII - XIX века (г. Москва)

Условные обозначения:

- конструкция и материал капитальных стен

- сводчатые перекрытия, их конструкция и материал

- композиционное решение и архитектурно-художественное оформление фасадов на середину XIX в.

- пространственно-планировочная структура интерьера здания в пределах кирпичных капитальных стен, плоских и сводчатых перекрытий

- заложенные проемы существовавшие в середине XIX в.
Схема предмета охраны объекта культурного наследия
федерального значения "Каретный сарай с амбаром", 1788 год,
1810 год, 1830-е годы, входящего в состав объекта
культурного наследия федерального значения "Ансамбль
усадебной застройки участка улицы Волхонки", вторая
половина XVII - XIX века (г. Москва)

Условные обозначения:

- конструкция и материал капитальных стен

- композиционное решение и архитектурно-художественное оформление фасадов на середину XIX в.

- пространственно-планировочная структура интерьера здания в пределах кирпичных капитальных стен, плоских и сводчатых перекрытий

- заложенные проемы существовавшие в середине XIX в.
Приложение N 2
к приказу Министерства культуры
Российской Федерации
от 19.02.2020 N 233
ПРЕДМЕТ
ОХРАНЫ ОБЪЕКТА КУЛЬТУРНОГО НАСЛЕДИЯ ФЕДЕРАЛЬНОГО ЗНАЧЕНИЯ
"ЖИЛОЙ КОРПУС", 1788 ГОД, 1804 ГОД, 1884 - 1889 ГОДЫ,
ВХОДЯЩЕГО В СОСТАВ ОБЪЕКТА КУЛЬТУРНОГО НАСЛЕДИЯ
ФЕДЕРАЛЬНОГО ЗНАЧЕНИЯ "АНСАМБЛЬ УСАДЕБНОЙ ЗАСТРОЙКИ
УЧАСТКА УЛИЦЫ ВОЛХОНКИ", ВТОРАЯ ПОЛОВИНА
XVII - XIX ВЕКА (Г. МОСКВА)
Градостроительные характеристики:
- градостроительные характеристики здания и его роль в композиционно-планировочной структуре владения;
Архитектурные и конструктивные характеристики:
- объемно-пространственная композиция здания, сложившаяся на первую половину XX века, включая высотные отметки по венчающему карнизу;
- конфигурация крыши первой половины XX века, характер кровельного покрытия, высотные отметки конька кровли;
- композиционное решение и архитектурно-художественное оформление фасадов сложившееся в XVIII веке - первой половине XX века, включая местоположение и оформление оконных и дверных проемов;
- материал и характер деревянных заполнений оконных и дверных проемов в XVIII веке - первой половины XX века;
- колористическое решение фасадов первой половины XX века;
- материал и характер отделки фасадных поверхностей: штукатурка, покраска;
- пространственно-планировочная структура интерьера здания в пределах капитальных стен и плоских перекрытий;
- конструкция и материал капитальных стен.
Схема предмета охраны объекта культурного наследия
федерального значения "Жилой корпус", 1788 год, 1804 год,
1884 - 1889 годы, входящего в состав объекта культурного
наследия федерального значения "Ансамбль усадебной
застройки участка улицы Волхонки", вторая половина
XVII - XIX века (г. Москва)

Условные обозначения:

- конструкция и материал капитальных стен

- композиционное решение и архитектурно-художественное оформление фасадов здания на период первой половины XX века

- пространственно-планировочная структура интерьера здания в пределах кирпичных капитальных стен и плоских перекрытий

- заложенные проемы существовавшие в первой половине XX века
Схема предмета охраны объекта культурного наследия
федерального значения "Жилой корпус", 1788 год, 1804 год,
1884 - 1889 годы, входящего в состав объекта культурного
наследия федерального значения "Ансамбль усадебной
застройки участка улицы Волхонки", вторая половина
XVII - XIX века (г. Москва)

Условные обозначения:

- конструкция и материал капитальных стен

- композиционное решение и архитектурно-художественное оформление фасадов здания на период первой половины XX века

- пространственно-планировочная структура интерьера здания в пределах кирпичных капитальных стен и плоских перекрытий

- заложенные проемы существовавшие в первой половине XX века
Приложение N 3
к приказу Министерства культуры
Российской Федерации
от 19.02.2020 N 233
ПРЕДМЕТ
ОХРАНЫ ОБЪЕКТА КУЛЬТУРНОГО НАСЛЕДИЯ ФЕДЕРАЛЬНОГО ЗНАЧЕНИЯ
"СЕВЕРО-ВОСТОЧНЫЙ КОРПУС", 1806 ГОД, 1850 ГОД, ВХОДЯЩЕГО
В СОСТАВ ОБЪЕКТА КУЛЬТУРНОГО НАСЛЕДИЯ ФЕДЕРАЛЬНОГО ЗНАЧЕНИЯ
"АНСАМБЛЬ УСАДЕБНОЙ ЗАСТРОЙКИ УЧАСТКА УЛИЦЫ ВОЛХОНКИ",
ВТОРАЯ ПОЛОВИНА XVII - XIX ВЕКА (Г. МОСКВА)
Градостроительные характеристики:
- градостроительные характеристики здания и лестничной пристройки конца XIX века - начала XX века и их роль в композиционно-планировочной структуре владения;
Архитектурные и конструктивные характеристики:
- объемно-пространственная композиция здания, сложившаяся к концу XIX века, включая высотные отметки по венчающему карнизу;
- объемно-пространственная композиция лестничной пристройки конца XIX века - начала XX века;
- конфигурация крыши, характер кровельного покрытия, высотные отметки конька кровли здания;
- композиционное решение и архитектурно-художественное оформление фасадов на XIX век, включая местоположение и оформление оконных и дверных проемов;
- материал и характер деревянных заполнений оконных и дверных проемов здания на период XIX века;
- колористическое решение фасадов здания на XIX век;
- материал и характер отделки фасадных поверхностей: здания и 1-го этажа лестничной пристройки - штукатурка, покраска, 2-го этажа лестничной пристройки - горизонтальная тесовая облицовка;
- пространственно-планировочная структура интерьера здания в пределах капитальных стен и плоских перекрытий;
- конструкция и материал (кирпич) капитальных стен здания на XIX век.
Схема предмета охраны объекта культурного наследия
федерального значения "Северо-восточный корпус", 1806 год,
1850 год, входящего в состав объекта культурного наследия
федерального значения "Ансамбль усадебной застройки
участка улицы Волхонки", вторая половина
XVII - XIX века (г. Москва)

Условные обозначения:

- конструкция и материал капитальных стен

- композиционное решение и архитектурно-художественное оформление фасадов конца XIX века

- пространственно-планировочная структура интерьера здания в пределах капитальных стен и плоских перекрытий

- заложенные проемы существовавшие в XIX веке

- пространственно планировочная структура лестничной пристройки на конец XIX - начало XX века
Схема предмета охраны объекта культурного наследия
федерального значения "Северо-восточный корпус", 1806 год,
1850 год, входящего в состав объекта культурного наследия
федерального значения "Ансамбль усадебной застройки
участка улицы Волхонки", вторая половина
XVII - XIX века (г. Москва)

Условные обозначения:

- конструкция и материал капитальных стен

- композиционное решение и архитектурно-художественное оформление фасадов конца XIX века

- пространственно-планировочная структура интерьера здания в пределах капитальных стен и плоских перекрытий

- заложенные проемы существовавшие в XIX веке

- пространственно планировочная структура лестничной пристройки на конец XIX - начало XX века
Приложение N 4
к приказу Министерства культуры
Российской Федерации
от 19.02.2020 N 233
ПРЕДМЕТ
ОХРАНЫ ОБЪЕКТА КУЛЬТУРНОГО НАСЛЕДИЯ ФЕДЕРАЛЬНОГО ЗНАЧЕНИЯ
"ЖИЛОЙ КОРПУС", 1810-Е ГОДЫ, 1816 ГОД, ВХОДЯЩЕГО В СОСТАВ
ОБЪЕКТА КУЛЬТУРНОГО НАСЛЕДИЯ ФЕДЕРАЛЬНОГО ЗНАЧЕНИЯ
"АНСАМБЛЬ УСАДЕБНОЙ ЗАСТРОЙКИ УЧАСТКА УЛИЦЫ ВОЛХОНКИ",
ВТОРАЯ ПОЛОВИНА XVII - XIX ВЕКА (Г. МОСКВА)
Градостроительные характеристики:
- градостроительные характеристики здания и его роль в композиционно-планировочной структуре владения;
Архитектурные и конструктивные характеристики:
- объемно-пространственная композиция здания, сложившаяся к началу XIX века, включая высотные отметки по венчающему карнизу;
- конфигурация крыши, характер кровельного покрытия, высотные отметки конька кровли здания;
- композиционное решение и архитектурно-художественное оформление фасадов, включая местоположение и оформление оконных и дверных проемов начала XIX века;
- материал и характер деревянных заполнений оконных и дверных проемов здания начала XIX века;
- колористическое решение фасадов здания начала XIX века;
- материал и характер отделки фасадных поверхностей: покраска по кирпичу;
- пространственно-планировочная структура интерьера здания в пределах капитальных стен и плоских перекрытий;
- конструкция и материал капитальных стен.
Схема предмета охраны объекта культурного наследия
федерального значения "Жилой корпус", 1810-е годы, 1816
год, входящего в состав объекта культурного наследия
федерального значения "Ансамбль усадебной застройки участка
улицы Волхонки", вторая половина XVII - XIX века
(г. Москва)

Приложение N 5
к приказу Министерства культуры
Российской Федерации
от 19 февраля 2020 г. N 233
ПРЕДМЕТ
ОХРАНЫ ОБЪЕКТА КУЛЬТУРНОГО НАСЛЕДИЯ ФЕДЕРАЛЬНОГО ЗНАЧЕНИЯ
"ПАЛАТЫ ДУМНОГО ДВОРЯНИНА ПОЛТЕВА", ВТОРАЯ ПОЛОВИНА XVII
ВЕКА, ВХОДЯЩЕГО В СОСТАВ ОБЪЕКТА КУЛЬТУРНОГО НАСЛЕДИЯ
ФЕДЕРАЛЬНОГО ЗНАЧЕНИЯ "АНСАМБЛЬ УСАДЕБНОЙ ЗАСТРОЙКИ
УЧАСТКА УЛИЦЫ ВОЛХОНКИ", ВТОРАЯ ПОЛОВИНА
XVII - XIX ВЕКА" (Г. МОСКВА)
Градостроительные характеристики:
- градостроительные характеристики здания и его роль в композиционно-планировочной структуре владения.
Архитектурные и конструктивные характеристики:
- объемно-пространственная композиция здания, сложившаяся к середине XIX века, включая высотные отметки по венчающему карнизу;
- конфигурация крыши, характер кровельного покрытия, высотные отметки конька кровли здания;
- композиционное решение и архитектурно-художественное оформление фасадов первого этажа конца XVII века; местоположение и оформление оконных и дверных проемов XVII - XIX вв.;
- материал и характер деревянных заполнений оконных и дверных проемов на период XVII - XIX вв.;
- колористическое решение фасадов первого этажа на конец XVII века, второго этажа - на середину XIX века;
- материал и характер отделки фасадных поверхностей: первый этаж - известковая обмазка и покраска (в том числе декоративные элементы восточного фасада), второй этаж - штукатурка, покраска;
- пространственно-планировочная структура интерьера здания в пределах капитальных стен, плоских и сводчатых перекрытий;
- конструкция и материал капитальных стен;
- сводчатые перекрытия, включая сохранившиеся пяты утраченного свода в угловом помещении на первом этаже в осях 1-5/Д-Ж, их конструкция и материал.
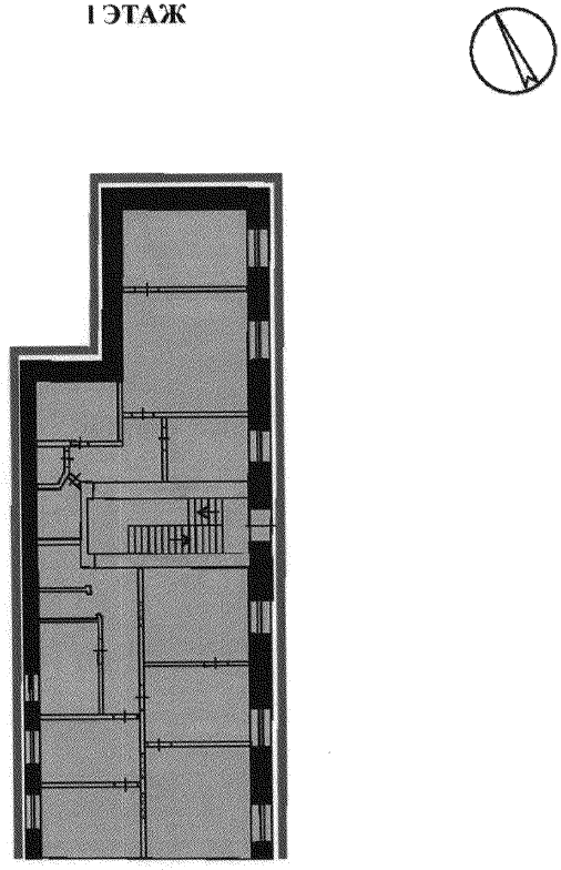
Схема предмета охраны объекта культурного наследия
федерального значения "Палаты думного дворянина Полтева",
вторая половина XVII века, входящего в состав объекта
культурного наследия федерального значения "Ансамбль
усадебной застройки участка улицы Волхонки", вторая
половина XVII - XIX века" (г. Москва)
ПОДВАЛ

Условные обозначения:

- конструкция и материал капитальных стен;

- сводчатые перекрытия, их конструкция и материал;

- композиционное решение и архитектурно-художественное оформление фасадов здания на период XVII - XIX века;

- пространственно-планировочная структура интерьера здания в пределах кирпичных капитальных стен, плоских и сводчатых перекрытий;

- заложенные проемы с возможностью дальнейшего раскрытия.
1 ЭТАЖ

Условные обозначения:
![]()
- конструкция и материал капитальных стен;

- сводчатые перекрытия, их конструкция и материал;

- композиционное решение и архитектурно-художественное оформление фасадов здания на период XVII - XIX века;

- пространственно-планировочная структура интерьера здания в пределах кирпичных капитальных стен, плоских и сводчатых перекрытий;

- заложенные проемы с возможностью дальнейшего раскрытия;

- утраченный свод;
![]()
- сохранившиеся пяты утраченного свода.
2 ЭТАЖ

Условные обозначения:

- конструкция и материал капитальных стен;

- композиционное решение и архитектурно-художественное оформление фасадов здания на период XVII - XIX века;

- пространственно-планировочная структура интерьера здания в пределах кирпичных капитальных стен, плоских и сводчатых перекрытий;

- заложенные проемы с возможностью дальнейшего раскрытия.