Приказ Минкультуры России от 28.11.2025 N 2198
МИНИСТЕРСТВО КУЛЬТУРЫ РОССИЙСКОЙ ФЕДЕРАЦИИ
ПРИКАЗ
от 28 ноября 2025 г. N 2198
ОБ УТВЕРЖДЕНИИ ТРЕБОВАНИЙ
К ОСУЩЕСТВЛЕНИЮ ДЕЯТЕЛЬНОСТИ И ГРАДОСТРОИТЕЛЬНОМУ РЕГЛАМЕНТУ
В ГРАНИЦАХ ТЕРРИТОРИИ ОБЪЕКТА КУЛЬТУРНОГО НАСЛЕДИЯ
(ПАМЯТНИКА ИСТОРИИ И КУЛЬТУРЫ) НАРОДОВ РОССИЙСКОЙ ФЕДЕРАЦИИ
ФЕДЕРАЛЬНОГО ЗНАЧЕНИЯ - ДОСТОПРИМЕЧАТЕЛЬНОЕ МЕСТО "УСАДЬБА
"ГОРКИ": ПАМЯТНОЕ МЕСТО, СВЯЗАННОЕ С ПОСЛЕДНИМИ ГОДАМИ ЖИЗНИ
И ДЕЯТЕЛЬНОСТИ В.И. ЛЕНИНА", 1918 - 1924 ГГ. (МОСКОВСКАЯ
ОБЛАСТЬ, ЛЕНИНСКИЙ ГОРОДСКОЙ ОКРУГ, РАБОЧИЙ ПОСЕЛОК
ГОРКИ ЛЕНИНСКИЕ)
В соответствии с подпунктом 1 пункта 3 статьи 5.1 Федерального закона от 25 июня 2002 г. N 73-ФЗ "Об объектах культурного наследия (памятниках истории и культуры) народов Российской Федерации", пунктом 1 Положения о Министерстве культуры Российской Федерации, утвержденного постановлением Правительства Российской Федерации от 20 июля 2011 г. N 590, приказываю:
1. Утвердить прилагаемые требования к осуществлению деятельности и градостроительному регламенту в границах территории объекта культурного наследия (памятника истории и культуры) народов Российской Федерации федерального значения - достопримечательное место "Усадьба "Горки": памятное место, связанное с последними годами жизни и деятельности В.И. Ленина", 1918 - 1924 гг. (Московская область, Ленинский городской округ, рабочий поселок Горки Ленинские).
2. Контроль за исполнением настоящего приказа возложить на заместителя Министра культуры Российской Федерации, курирующего деятельность Департамента государственной охраны культурного наследия.
Министр
О.Б.ЛЮБИМОВА
Утверждены
приказом Министерства культуры
Российской Федерации
от 28 ноября 2025 г. N 2198
ТРЕБОВАНИЯ
К ОСУЩЕСТВЛЕНИЮ ДЕЯТЕЛЬНОСТИ И ГРАДОСТРОИТЕЛЬНОМУ РЕГЛАМЕНТУ
В ГРАНИЦАХ ТЕРРИТОРИИ ОБЪЕКТА КУЛЬТУРНОГО НАСЛЕДИЯ
(ПАМЯТНИКА ИСТОРИИ И КУЛЬТУРЫ) НАРОДОВ РОССИЙСКОЙ ФЕДЕРАЦИИ
ФЕДЕРАЛЬНОГО ЗНАЧЕНИЯ - ДОСТОПРИМЕЧАТЕЛЬНОЕ МЕСТО "УСАДЬБА
"ГОРКИ": ПАМЯТНОЕ МЕСТО, СВЯЗАННОЕ С ПОСЛЕДНИМИ ГОДАМИ ЖИЗНИ
И ДЕЯТЕЛЬНОСТИ В.И. ЛЕНИНА", 1918 - 1924 ГГ. (МОСКОВСКАЯ
ОБЛАСТЬ, ЛЕНИНСКИЙ ГОРОДСКОЙ ОКРУГ, РАБОЧИЙ ПОСЕЛОК
ГОРКИ ЛЕНИНСКИЕ)
I. Общие требования
1. В границах территории объекта культурного наследия (памятника истории и культуры) народов Российской Федерации федерального значения - достопримечательное место "Усадьба "Горки": памятное место, связанное с последними годами жизни и деятельности В.И. Ленина", 1918 - 1924 гг. (Московская область, Ленинский городской округ, рабочий поселок Горки Ленинские) (далее - Достопримечательное место), разрешается:
реконструкция, строительство объектов капитального строительства, функционально связанных с сохранением объектов культурного наследия (памятников истории и культуры) народов Российской Федерации (далее - объекты культурного наследия), и их использованием в рамках деятельности Федерального государственного бюджетного учреждения культуры "Государственный исторический музей-заповедник "Горки Ленинские" (далее - Музей-заповедник);
воссоздание утраченных историко-культурных элементов ландшафта, в том числе элементов планировки;
проведение мероприятий по сохранению ценных элементов исторической планировки, застройки и рельефа территории;
капитальный ремонт, реконструкция, строительство объектов капитального строительства, необходимых для функционирования Музея-заповедника;
капитальный ремонт, реконструкция, строительство объектов капитального строительства в границах населенных пунктов в соответствии с настоящими Требованиями при условии сохранения особенностей Достопримечательного места, являющихся основаниями для включения его в единый государственный реестр объектов культурного наследия и подлежащих обязательному сохранению;
установка информационных надписей, знаков и обозначений в границах территорий объектов культурного наследия;
установка памятных знаков, монументальных скульптур;
устройство туристско-экскурсионных площадок и трасс;
капитальный ремонт, реконструкция линейных объектов инженерной и транспортной инфраструктуры, при реконструкции наземных и надземных инженерных сетей их прокладка в подземные трассы в соответствии с настоящими Требованиями при условии сохранения особенностей Достопримечательного места, являющихся основаниями для включения его в единый государственный реестр объектов культурного наследия и подлежащих обязательному сохранению;
строительство подземных инженерных коммуникаций с последующей рекультивацией нарушенных земель.
2. В границах территории Достопримечательного места запрещается:
хозяйственная деятельность, наносящая ущерб окружающей среде, природным и антропогенным объектам и комплексам, гидрологическому режиму водных объектов и элементов гидрографической сети;
проведение работ, направленных на изменение рельефа пойменных территорий, склонов надпойменных террас, кроме восстановления нарушенных участков ландшафта;
применение технических средств, создающих вибрационные нагрузки динамическим воздействием на почву и грунты в зоне их взаимодействия со зданиями и сооружениями;
размещение и захоронение отходов производства и потребления;
устройство свалок вне специально установленных мест, организация необорудованных мест для мусора;
устройство складов и захоронений ядохимикатов;
разведка, разработка и добыча полезных ископаемых, разработка карьеров.
II. Режим Р-0
3. В границах регламентных участков Р-0.1, Р-0.2, Р-0.3, Р-0.4 разрешается:
консервация, ремонт, реставрация, приспособление объектов культурного наследия для современного использования;
проведение работ по выявлению, изучению и сохранению объектов археологического наследия;
размещение временных сооружений на период проведения культурно-массовых мероприятий;
капитальный ремонт объектов капитального строительства;
размещение малых архитектурных форм и некапитальных строений, сооружений в рамках проведения работ по сохранению объектов культурного наследия;
проведение мероприятий по обеспечению пожарной безопасности.
4. В границах регламентных участков Р-0.1, Р-0.2, Р-0.3, Р-0.4 запрещается:
строительство объектов капитального строительства;
устройство автомобильных стоянок и парковок.
III. Режим Р-I
5. В границах регламентных участков Р-I.1, Р-I.2 разрешается:
сохранение и восстановление элементов ландшафта, особенностей рельефа, растительности, соотношений застроенных, лесных территорий и свободных участков, склонов оврагов и пойменных долин;
сохранение и воссоздание гидрографии, контуров лесных массивов, исторических трасс дорог и других элементов ландшафта;
реконструкция проезжей части дорог и тротуаров, строительство велосипедных и пешеходных дорожек;
строительство объектов капитального строительства, необходимых для функционирования Музея-заповедника, с высотными параметрами 12 м от уровня земли до верхней отметки кровли;
использование в отделке фасадов зданий материалов из дерева, камня, кирпича, стекла, штукатурки с покраской;
использование металлических, деревянных, керамических кровельных покрытий;
установка мемориальных досок, вывесок, информационных табличек площадью информационного поля не более 0,6 кв.м;
установка рекламных и информационных конструкций (туристической и социальной направленности), надписей и обозначений с соблюдением следующих параметров: не более 1,2 м от отметки земли по высоте и 0,8 м по ширине.
6. В границах регламентных участков Р-I.1, Р-I.2 запрещается:
использование строительных технологий, оказывающих негативное воздействие на объекты культурного наследия;
размещение взрыво- и пожароопасных объектов, угрожающих сохранности объектов культурного наследия;
строительство линейных объектов инженерной инфраструктуры (внешние сети водоснабжения, водоотведения, теплоснабжения, газоснабжения, электроснабжения, телефонизации) надземным способом;
изменение гидрологических условий при прокладке коммуникаций, благоустройстве территории поймы рек;
нарушение планировки, ландшафта, панорам восприятия объектов культурного наследия;
размещение технического и инженерного оборудования на фасадах и кровлях объектов капитального строительства, формирующих территории общего пользования, за исключением систем обеспечения безопасности.
IV. Режим Р-II
7. В границах регламентных участков Р-II.1, Р-II.2, Р-II.3, Р-II.4 разрешается:
сохранение лесопаркового типа ландшафта, породного состава древесных насаждений;
проведение реконструктивных рубок, рубок формирования;
проведение работ по расчистке русел рек и ручьев, укреплению берегов;
капитальный ремонт, реконструкция, строительство объектов инженерной инфраструктуры с сохранением и восстановлением элементов природного ландшафта.
8. В границах регламентных участков Р-II.1, Р-II.2, Р-II.3, Р-II.4 запрещается:
строительство объектов капитального строительства;
хозяйственная деятельность, которая может привести к повреждению ценного ландшафта;
изменение исторически ценной планировочной структуры Достопримечательного места.
IV. Режим Р-III
9. В границах регламентных участков Р-III.1, Р-III.2, Р-III.3 разрешается:
сохранение и восстановление (регенерация) исторических типов зеленых насаждений (древесных, кустарниковых и цветочных посадок), покрытий дорожной и тропиночной сети, малых архитектурных форм, отметок природного рельефа, соотношения открытых и закрытых пространств;
проведение работ по расчистке русел рек и ручьев, укреплению берегов;
благоустройство и озеленение территории;
использование территории для туристических и спортивных целей;
создание пешеходных прогулочных зон, пешеходных дорожек;
капитальный ремонт, реконструкция, строительство объектов инженерной инфраструктуры с сохранением и восстановлением элементов природного ландшафта;
капитальный ремонт и реконструкция объектов капитального строительства при отсутствии негативного влияния на восприятие Достопримечательного места;
размещение малых архитектурных форм и некапитальных строений, сооружений при отсутствии негативного влияния на восприятие Достопримечательного места.
10. В границах регламентных участков Р-III.1, Р-III.2, Р-III.3 запрещается:
изменения исторически ценной планировочной структуры;
хозяйственная деятельность, ведущая к повреждению ценного ландшафта.
V. Режим Р-IV
11. В границах регламентных участков Р-IV.1, Р-IV.2, Р-IV.3, Р-IV.4, Р-IV.5, Р-IV.6, Р-IV.7, Р-IV.8, Р-IV.9, Р-IV.10 разрешается:
реконструкция, строительство зданий и сооружений в соответствии с предельными параметрами, определенными настоящими Требованиями;
благоустройство и озеленение территории;
посадка деревьев вдоль основных подъездов к Музею-заповеднику;
строительство, реконструкция и капитальный ремонт дорог, улиц и проездов;
строительство, реконструкция и капитальный ремонт инженерных сооружений и объектов;
установка мемориальных досок, вывесок, информационных табличек площадью информационного поля не более 0,6 кв.м;
установка рекламных и информационных конструкций (туристической и социальной направленности), надписей и обозначений с соблюдением следующих параметров: не более 1,2 м от отметки земли по высоте и 0,8 м по ширине;
установка вывесок размерами не более 1 м по горизонтали и не более 0,5 м по вертикали с размещением не выше отметки нижнего края окон второго этажа (у одноэтажных зданий - не выше нижней отметки карниза здания), в виде отдельных объемных букв и знаков; при консольном расположении вывески максимальный отступ от плоскости фасада не более 0,1 м.
12. В границах регламентного участка Р-IV.1:
типология застройки - индивидуальные жилые дома;
предельная высота объектов капитального строительства от уровня земли до верхней отметки кровли - 8 м;
вид кровли - скатная (угол не более 30 градусов) и вальмовая;
использование в отделке фасадов зданий материалов из дерева, камня, кирпича, стекла, штукатурки с покраской;
использование металлических, деревянных, керамических кровельных покрытий.
13. В границах регламентного участка Р-IV.2:
предельная высота объектов капитального строительства от уровня земли до верхней отметки кровли - 10 м;
использование в отделке фасадов зданий материалов из дерева, камня, кирпича, стекла, штукатурки с покраской;
использование металлических, деревянных, керамических кровельных покрытий.
14. В границах регламентных участков Р-IV.3, Р-IV.4:
типология застройки - индивидуальные жилые дома;
предельная высота объектов капитального строительства от уровня земли до верхней отметки кровли - 10 м;
вид кровли - скатная (угол не более 30 градусов) и вальмовая;
использование в отделке фасадов зданий материалов из дерева, камня, кирпича, стекла, штукатурки с покраской;
использование металлических, деревянных, керамических кровельных покрытий.
15. В границах регламентных участков Р-IV.5, Р-IV.6, Р-IV.7:
предельная высота объектов капитального строительства от уровня земли до верхней отметки кровли - 10 м;
использование в отделке фасадов зданий материалов из дерева, камня, кирпича, штукатурки с покраской;
использование металлических, деревянных, керамических кровельных покрытий.
16. В границах регламентных участков Р-IV.8, Р-IV.9, Р-IV.10:
предельная высота объектов капитального строительства от уровня земли до верхней отметки кровли - 15 м;
использование в отделке фасадов зданий материалов из дерева, камня, кирпича, стекла, штукатурки с покраской;
использование металлических, деревянных, керамических кровельных покрытий.
17. В границах регламентных участков Р-IV.1, Р-IV.2, Р-IV.3, Р-IV.4, Р-IV.5, Р-IV.6, Р-IV.7, Р-IV.8, Р-IV.9, Р-IV.10 запрещается:
использование строительных технологий, оказывающих негативное воздействие на объекты культурного наследия и историческую застройку;
размещение взрыво- и пожароопасных объектов, угрожающих сохранности объектов культурного наследия;
размещение базовых станций сотовой связи, башенных и антенно-мачтовых конструкций, включая телевизионные и радиоантенны, которые препятствуют визуальному восприятию объектов культурного наследия и сохранению и (или) восстановлению соотношения открытых и закрытых пространств, градостроительных (планировочных, типологических, масштабных) характеристик историко-градостроительной и (или) природной среды, за исключением проведения работ по ремонту и модернизации базовых станций сотовой связи, башенных и антенно-мачтовых конструкций, включая телевизионные и радиоантенны, в пределах их объемно-пространственных параметров;
устройство ограждений земельных участков из профилированных настилов, сборных железобетонных элементов, монолитных железобетонных конструкций или в виде сплошных кирпичных стен, оштукатуренных поверхностей;
строительство объектов производственного, складского назначения в границах регламентных участков Р-IV.1, Р-IV.2, Р-IV.3, Р-IV.4, Р-IV.5, Р-IV.6, Р-IV.7, Р-IV.8, Р-IV.9;
размещение производственных и транспортных объектов, загрязняющих водный и воздушный бассейны, почву, грунтовые и подземные воды и источники, опасных в пожарном отношении в границе регламентного участка Р-IV.10.
Приложение N 1
к требованиям к осуществлению
деятельности и градостроительному
регламенту в границах территории объекта
культурного наследия федерального значения -
достопримечательное место "Усадьба
"Горки": памятное место, связанное
с последними годами жизни и деятельности
В.И. Ленина", 1918 - 1924 гг. (Московская
область, Ленинский городской округ,
рабочий поселок Горки Ленинские),
утвержденным приказом Министерства
культуры Российской Федерации
от 28 ноября 2025 г. N 2198
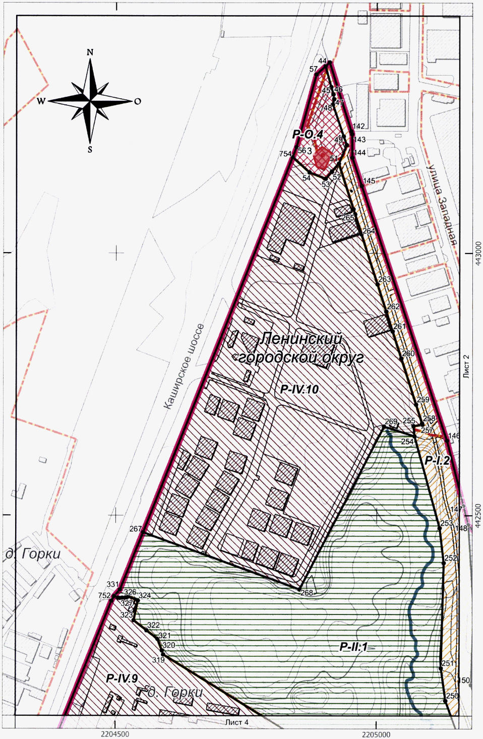
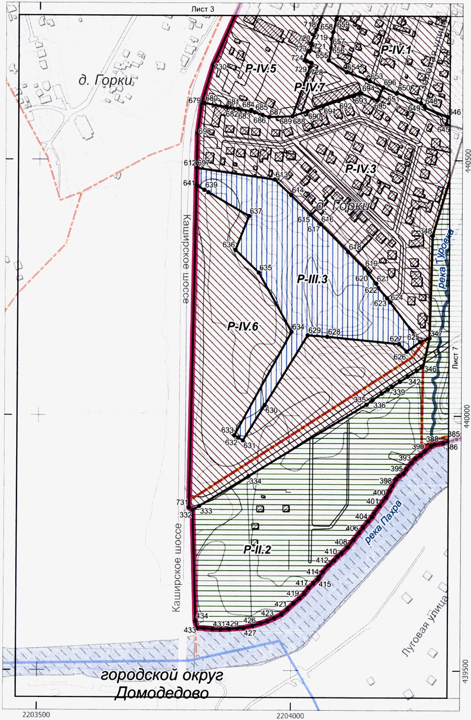
Карта (схема)
требований к осуществлению деятельности и градостроительному
регламенту в границах территории Достопримечательного места

Карта (схема) границы территории Достопримечательного места
с границами регламентных участков

УСЛОВНЫЕ ОБОЗНАЧЕНИЯ
![]()
граница территории Достопримечательного места
![]()
объекты культурного наследия
![]()
границы городских округов
![]()
границы населенных пунктов
![]()
характерные точки границ регламентных участков
![]()
залесенные территории
![]()
водные объекты
![]()
объекты капитального строительства
Требования к осуществлению деятельности и градостроительному регламенту
![]()
режим Р-О
![]()
режим Р-I
![]()
режим Р-II
![]()
режим Р-III
![]()
режим Р-IV
Объекты культурного наследия
1.
"Ансамбль усадьбы Горки Ленинские", XIX в.":
"Главный дом", XIX в.
"Флигель северный", XIX в.
"Флигель южный", XIX в.
"Беседка северная", 1910-е гг.
"Беседка южная", 1910-е гг.
"Грот", 1910 - 1914 гг.
"Парк", пер. пол. XIX в., 1909 - 1914 гг.
2.
"Дом крестьянина Шульгина В.А. (с подворьем), в котором 9 января 1921 г. Ленин Владимир Ильич беседовал с жителями деревни Горки", 9 января 1921 г.
3.
"Памятник В.И. Ленину", 1980 г.
4.
"Памятник Ленину В.И.", 1967 г.
5.
"Здание школы-интерната им. В.И. Ленина, 1935 г.
Лист 1

Лист 2

Лист 3

Лист 4

Лист 5

Лист 6

Лист 7

Лист 8

Приложение N 2
к требованиям к осуществлению
деятельности и градостроительному
регламенту в границах территории объекта
культурного наследия федерального значения -
достопримечательное место "Усадьба
"Горки": памятное место, связанное
с последними годами жизни и деятельности
В.И. Ленина", 1918 - 1924 гг. (Московская
область, Ленинский городской округ,
рабочий поселок Горки Ленинские),
утвержденным приказом Министерства
культуры Российской Федерации
от 28 ноября 2025 г. N 2198
КООРДИНАТЫ
ХАРАКТЕРНЫХ ТОЧЕК К КАРТЕ (СХЕМЕ) ТРЕБОВАНИЙ К ОСУЩЕСТВЛЕНИЮ
ДЕЯТЕЛЬНОСТИ И ГРАДОСТРОИТЕЛЬНОМУ РЕГЛАМЕНТУ В ГРАНИЦАХ
ТЕРРИТОРИИ ДОСТОПРИМЕЧАТЕЛЬНОГО МЕСТА
Координаты характерных точек в системе координат МСК-50, зона 2,
метод определения - геодезический,
средняя квадратическая погрешность - 0,10 м
Номер точки
X
Y
Р-0.1
1
441272,32
2204652,12
2
441267,07
2204661,76
3
441146,13
2204860,72
4
441079,10
2204813,39
5
441055,33
2204780,96
6
440984,32
2204849,17
7
440946,33
2205043,46
8
440921,35
2205163,97
9
440910,84
2205200,35
10
440861,76
2205188,95
11
440696,57
2205148,63
12
440578,27
2205118,83
13
440582,02
2205108,56
14
440654,07
2204911,12
15
440658,90
2204875,62
16
440683,43
2204811,64
17
440664,15
2204700,77
18
440625,59
2204628,46
19
440611,58
2204559,22
20
440601,93
2204458,86
21
440624,74
2204353,09
22
440776,75
2204374,55
23
440929,34
2204440,55
24
440993,24
2204458,89
25
441064,87
2204502,45
26
441117,75
2204538,97
27
441171,83
2204575,44
28
441191,00
2204583,61
29
441260,75
2204638,30
1
441272,32
2204652,12
Р-0.2
30
440208,41
2204860,66
31
440250,24
2204867,53
32
440236,13
2204953,46
33
440177,60
2204943,86
34
440182,80
2204912,13
35
440199,51
2204914,87
30
440208,41
2204860,66
Р-0.3
36
441514,32
2204178,04
37
441513,70
2204179,95
38
441502,04
2204215,62
39
441498,93
2204214,80
40
441498,46
2204216,26
41
441485,88
2204212,97
42
441473,04
2204207,40
43
441473,25
2204161,58
36
441514,32
2204178,04
Р-0.4
44
443356,50
2204901,11
45
443316,97
2204911,99
46
443302,98
2204916,18
47
443293,82
2204917,55
48
443283,59
2204915,29
49
443222,49
2204935,83
50
443206,09
2204941,79
51
443170,76
2204926,56
52
443155,56
2204913,12
53
443142,17
2204901,29
54
443153,94
2204870,51
55
443182,99
2204837,97
56
443201,94
2204845,54
57
443340,75
2204883,86
44
443356,50
2204901,11
Р-I.1
58
440283,07
2204508,67
59
440335,43
2204520,89
60
440371,74
2204525,91
61
440414,83
2204532,87
62
440446,59
2204539,26
63
440481,76
2204555,42
64
440526,59
2204586,82
65
440541,85
2204605,11
66
440555,66
2204615,36
67
440651,04
2204676,18
17
440664,15
2204700,77
16
440683,43
2204811,64
15
440658,90
2204875,62
14
440654,07
2204911,12
68
440583,18
2205105,37
69
440505,90
2205086,50
70
440477,24
2205078,95
71
440461,00
2205074,40
72
440451,01
2205067,82
73
440446,98
2205064,56
74
440441,70
2205057,40
75
440441,39
2205046,56
76
440450,92
2204985,55
77
440463,46
2204893,05
78
440460,63
2204889,79
79
440390,73
2204879,79
80
440341,31
2204871,19
81
440283,63
2204861,15
82
440093,52
2204831,77
83
440066,93
2204828,15
84
440071,09
2204796,70
85
440071,41
2204794,03
86
440071,72
2204791,50
87
440072,13
2204788,88
88
440072,52
2204786,22
89
440073,54
2204778,40
90
440075,34
2204765,25
91
440075,78
2204762,57
92
440075,99
2204759,94
93
440076,59
2204754,72
94
440078,75
2204738,89
95
440079,39
2204733,67
96
440081,57
2204717,94
97
440083,87
2204699,52
98
440084,10
2204696,97
99
440084,63
2204694,35
100
440085,68
2204685,88
101
440087,41
2204672,78
102
440087,99
2204667,47
103
440088,41
2204664,87
104
440089,05
2204659,63
105
440089,26
2204656,99
106
440089,93
2204651,70
107
440092,21
2204633,28
108
440094,17
2204617,54
109
440094,80
2204612,29
110
440098,15
2204585,99
111
440102,36
2204554,49
112
440104,50
2204538,74
113
440105,69
2204530,86
114
440107,34
2204520,38
115
440108,43
2204517,91
116
440116,32
2204510,71
117
440118,99
2204510,50
118
440124,29
2204510,80
119
440137,53
2204510,79
120
440140,57
2204510,73
121
440145,66
2204510,96
122
440156,29
2204510,87
123
440161,46
2204510,98
124
440169,31
2204510,61
125
440174,56
2204511,21
126
440177,21
2204511,56
127
440179,83
2204511,97
128
440182,54
2204512,14
129
440191,59
2204513,32
130
440217,45
2204516,49
131
440224,36
2204517,31
132
440228,42
2204517,86
133
440229,15
2204520,40
134
440231,92
2204520,94
135
440234,25
2204521,74
136
440247,29
2204523,66
137
440249,37
2204521,78
138
440266,94
2204511,10
139
440266,90
2204510,91
140
440275,88
2204505,46
58
440283,07
2204508,67
Р-I.2
141
443363,89
2204909,20
142
443232,46
2204950,43
143
443226,73
2204952,23
144
443182,01
2204952,48
145
443128,55
2204970,51
146
442642,79
2205134,38
147
442518,83
2205166,27
148
442482,70
2205175,57
149
442315,68
2205185,88
150
442175,62
2205180,59
151
441920,42
2205280,29
152
441911,70
2205282,58
153
441883,13
2205345,62
154
441855,77
2205404,28
155
441850,50
2205423,15
156
441826,52
2205470,57
157
441802,56
2205444,92
158
441791,88
2205461,07
159
441785,37
2205483,42
160
441763,40
2205518,96
161
441753,42
2205553,25
162
441736,89
2205573,81
163
441720,12
2205611,62
164
441642,79
2205580,98
165
441601,83
2205574,57
166
441561,75
2205569,17
167
441555,44
2205568,74
168
441552,29
2205568,73
169
441549,42
2205568,49
170
441542,95
2205566,82
171
441482,02
2205554,65
172
441466,19
2205551,33
173
441498,99
2205483,57
174
441482,63
2205475,46
175
441441,74
2205455,18
176
441441,97
2205454,22
177
441432,80
2205449,61
178
441426,62
2205446,44
179
441417,54
2205441,61
180
441411,38
2205438,55
181
441402,16
2205433,90
182
441399,08
2205432,26
183
441380,86
2205422,93
184
441377,77
2205421,59
185
441368,69
2205416,76
186
441365,59
2205415,18
187
441350,41
2205407,42
188
441347,32
2205405,88
189
441344,66
2205404,75
190
441340,05
2205402,24
191
441331,87
2205397,97
192
441328,68
2205396,44
193
441313,15
2205388,40
194
441288,77
2205375,60
195
441279,66
2205370,99
196
441275,89
2205368,87
197
441270,40
2205366,16
198
441267,33
2205364,50
199
441224,90
2205342,36
200
441200,53
2205329,95
201
441197,34
2205328,29
202
441185,04
2205321,99
203
441183,42
2205321,11
204
441182,05
2205320,37
205
441181,76
2205316,97
206
441180,09
2205306,77
207
441180,03
2205306,72
208
441180,02
2205306,65
209
441174,85
2205303,11
210
441116,47
2205262,36
211
441112,28
2205259,32
212
441109,50
2205257,30
213
441106,71
2205255,40
214
441101,12
2205251,41
215
441092,08
2205245,00
216
441089,35
2205243,19
217
441086,42
2205241,07
218
441082,26
2205238,18
219
441074,01
2205232,43
220
441059,75
2205222,58
221
441056,07
2205220,33
222
441047,97
2205232,00
223
441043,07
2205228,30
224
441036,65
2205223,30
225
441041,95
2205209,98
226
441030,71
2205202,37
227
441025,06
2205198,43
228
441022,79
2205197,10
229
441015,17
2205192,74
230
441010,72
2205188,58
231
440987,89
2205164,85
232
440980,19
2205154,54
233
440956,77
2205152,50
234
440926,65
2205138,40
7
440946,33
2205043,46
6
440984,32
2204849,17
5
441055,33
2204780,96
4
441079,10
2204813,39
3
441146,13
2204860,72
235
441191,24
2204889,75
236
441231,36
2204906,89
237
441232,21
2204909,78
238
441224,60
2204925,68
239
441388,09
2205000,26
240
441435,34
2205020,39
241
441469,14
2205039,03
242
441582,44
2205090,13
243
441644,16
2205121,10
244
441708,45
2205138,68
245
441753,41
2205160,50
246
441807,86
2205178,27
247
441867,18
2205208,57
248
441910,42
2205211,26
249
441924,61
2205213,57
250
442145,97
2205132,12
251
442208,00
2205123,29
252
442409,34
2205128,44
253
442476,23
2205120,52
254
442651,25
2205071,84
255
442670,75
2205070,14
256
442673,36
2205086,78
257
442673,42
2205087,13
258
442675,78
2205086,37
259
442711,68
2205074,78
260
442799,71
2205046,36
261
442851,33
2205029,69
262
442888,85
2205017,58
263
442940,88
2205000,78
264
443036,40
2204969,94
265
443074,42
2204957,66
266
443084,03
2204954,56
51
443170,76
2204926,56
50
443206,09
2204941,79
49
443222,49
2204935,83
48
443283,59
2204915,29
47
443293,82
2204917,55
46
443302,98
2204916,18
45
443316,97
2204911,99
44
443356,50
2204901,11
141
443363,89
2204909,20
Р-II.1
267
442467,81
2204552,50
268
442358,29
2204852,41
269
442669,76
2205013,64
254
442651,25
2205071,84
253
442476,23
2205120,52
252
442409,34
2205128,44
251
442208,00
2205123,29
250
442145,97
2205132,12
249
441924,61
2205213,57
248
441910,42
2205211,26
247
441867,18
2205208,57
246
441807,86
2205178,27
245
441753,41
2205160,50
244
441708,45
2205138,68
243
441644,16
2205121,10
242
441582,44
2205090,13
241
441469,14
2205039,03
240
441435,34
2205020,39
239
441388,09
2205000,26
238
441224,60
2204925,68
237
441232,21
2204909,78
236
441231,36
2204906,89
235
441191,24
2204889,75
3
441146,13
2204860,72
2
441267,07
2204661,76
1
441272,32
2204652,12
29
441260,75
2204638,30
28
441191,00
2204583,61
27
441171,83
2204575,44
26
441117,75
2204538,97
25
441064,87
2204502,45
24
440993,24
2204458,89
23
440929,34
2204440,55
270
440867,29
2204413,71
271
440899,83
2204336,02
272
440928,09
2204321,66
273
440975,30
2204322,62
274
441034,59
2204332,63
275
441097,98
2204359,68
276
441164,48
2204400,08
277
441169,46
2204402,98
278
441176,70
2204390,60
279
441188,73
2204370,51
280
441209,15
2204382,24
281
441280,20
2204415,59
282
441278,20
2204420,80
283
441308,57
2204433,61
284
441310,68
2204428,62
285
441325,42
2204434,92
286
441330,51
2204438,93
287
441313,33
2204459,90
288
441360,05
2204493,11
289
441424,41
2204538,86
290
441390,01
2204606,24
291
441423,69
2204651,68
292
441476,97
2204667,24
293
441485,44
2204668,16
294
441518,79
2204680,41
295
441484,66
2204707,46
296
441496,66
2204710,51
297
441728,14
2204794,48
298
441748,22
2204739,94
299
441779,21
2204708,69
300
441814,38
2204662,67
301
441826,67
2204610,00
302
441833,12
2204608,56
303
441853,85
2204619,68
304
441855,75
2204618,18
305
441865,66
2204622,55
306
441868,70
2204627,53
307
441889,16
2204638,63
308
441869,43
2204751,76
309
441880,25
2204765,13
310
441887,38
2204774,18
311
441894,52
2204783,07
312
441902,46
2204786,13
313
441956,80
2204797,88
314
441986,22
2204805,74
315
441990,30
2204816,64
316
442004,55
2204819,52
317
442006,78
2204808,26
318
442088,56
2204827,10
319
442233,76
2204591,61
320
442241,68
2204588,93
321
442263,63
2204580,55
322
442279,93
2204559,56
323
442299,12
2204534,86
324
442336,58
2204542,81
325
442344,23
2204524,50
326
442342,36
2204519,16
327
442341,79
2204512,88
328
442341,34
2204507,86
329
442341,84
2204504,94
330
442345,42
2204497,70
331
442357,57
2204508,49
267
442467,81
2204552,50
Р-II.2
332
439814,69
2203805,29
333
439822,65
2203818,37
334
439881,47
2203915,08
335
440022,16
2204146,38
336
440031,15
2204158,35
337
440043,87
2204176,35
338
440051,48
2204188,03
339
440056,79
2204196,22
340
440067,04
2204211,99
341
440067,09
2204212,06
342
440077,01
2204227,04
343
440088,02
2204244,66
344
440088,24
2204245,00
345
440095,38
2204255,45
346
440096,79
2204257,63
347
440152,26
2204269,80
348
440352,54
2204275,02
349
440562,75
2204338,31
350
440621,69
2204352,37
21
440624,74
2204353,09
20
440601,93
2204458,86
19
440611,58
2204559,22
18
440625,59
2204628,46
67
440651,04
2204676,18
66
440555,66
2204615,36
65
440541,85
2204605,11
64
440526,59
2204586,82
63
440481,76
2204555,42
62
440446,59
2204539,26
61
440414,83
2204532,87
60
440371,74
2204525,91
59
440335,43
2204520,89
58
440283,07
2204508,67
140
440275,88
2204505,46
139
440266,90
2204510,91
138
440266,94
2204511,10
137
440249,37
2204521,78
136
440247,29
2204523,66
135
440234,25
2204521,74
134
440231,92
2204520,94
133
440229,15
2204520,40
132
440228,42
2204517,86
131
440224,36
2204517,31
130
440217,45
2204516,49
129
440191,59
2204513,32
128
440182,54
2204512,14
127
440179,83
2204511,97
126
440177,21
2204511,56
125
440174,56
2204511,21
124
440169,31
2204510,61
123
440161,46
2204510,98
122
440156,29
2204510,87
121
440145,66
2204510,96
120
440140,57
2204510,73
119
440137,53
2204510,79
118
440124,29
2204510,80
117
440118,99
2204510,50
116
440116,32
2204510,71
115
440108,43
2204517,91
114
440107,34
2204520,38
113
440105,69
2204530,86
112
440104,50
2204538,74
111
440102,36
2204554,49
110
440098,15
2204585,99
109
440094,80
2204612,29
108
440094,17
2204617,54
107
440092,21
2204633,28
106
440089,93
2204651,70
105
440089,26
2204656,99
104
440089,05
2204659,63
103
440088,41
2204664,87
102
440087,99
2204667,47
101
440087,41
2204672,78
100
440085,68
2204685,88
99
440084,63
2204694,35
98
440084,10
2204696,97
97
440083,87
2204699,52
96
440081,57
2204717,94
95
440079,39
2204733,67
94
440078,75
2204738,89
93
440076,59
2204754,72
92
440075,99
2204759,94
91
440075,78
2204762,57
90
440075,34
2204765,25
89
440073,54
2204778,40
88
440072,52
2204786,22
87
440072,13
2204788,88
86
440071,72
2204791,50
85
440071,41
2204794,03
84
440071,09
2204796,70
83
440066,93
2204828,15
351
440048,88
2204825,70
352
439998,40
2204818,83
353
439974,74
2204815,61
354
439974,04
2204814,97
355
439931,85
2204820,61
356
439930,67
2204821,38
357
439923,44
2204826,08
358
439884,75
2204832,31
359
439874,59
2204818,33
360
439868,77
2204798,52
361
439852,48
2204801,27
362
439810,92
2204729,38
363
439792,66
2204678,07
364
439673,27
2204595,88
365
439667,98
2204583,12
366
439685,89
2204586,35
367
439701,52
2204589,12
368
439717,11
2204589,58
369
439728,45
2204588,34
370
439742,29
2204585,15
371
439755,34
2204579,29
372
439780,67
2204570,64
373
439805,24
2204560,44
374
439837,42
2204541,15
375
439863,50
2204527,09
376
439891,08
2204508,41
377
439908,27
2204489,81
378
439925,39
2204463,89
379
439943,99
2204428,34
380
439953,83
2204404,79
381
439956,01
2204388,31
382
439959,33
2204368,27
383
439959,98
2204352,87
384
439958,71
2204336,32
385
439955,16
2204324,41
386
439950,61
2204308,47
387
439947,45
2204297,33
388
439945,01
2204282,14
389
439940,52
2204273,32
390
439930,82
2204261,65
391
439923,45
2204253,24
392
439916,82
2204243,29
393
439908,49
2204235,45
394
439896,09
2204225,53
395
439887,39
2204219,82
396
439882,72
2204211,97
397
439876,12
2204205,47
398
439863,56
2204198,35
399
439853,50
2204192,84
400
439840,37
2204185,82
401
439823,34
2204173,05
402
439808,63
2204162,37
403
439802,44
2204158,96
404
439793,72
2204151,13
405
439781,34
2204141,31
406
439770,11
2204132,93
407
439756,74
2204122,44
408
439743,00
2204111,38
409
439730,21
2204098,96
410
439724,19
2204091,41
411
439716,43
2204084,92
412
439706,92
2204074,40
413
439693,94
2204062,76
414
439684,27
2204056,10
415
439679,64
2204053,34
416
439671,09
2204044,16
417
439662,17
2204034,99
418
439650,75
2204026,21
419
439641,83
2204017,05
420
439631,54
2204005,19
421
439620,48
2203993,43
422
439609,80
2203981,19
423
439602,77
2203967,20
424
439596,90
2203953,77
425
439592,38
2203940,90
426
439587,83
2203924,77
427
439583,26
2203906,72
428
439582,60
2203894,69
429
439581,13
2203878,53
430
439580,23
2203861,21
431
439580,88
2203845,62
432
439582,50
2203829,25
433
439582,78
2203815,77
434
439596,75
2203812,07
332
439814,69
2203805,29
Р-II.3
233
440956,77
2205152,50
232
440980,19
2205154,54
231
440987,89
2205164,85
230
441010,72
2205188,58
229
441015,17
2205192,74
228
441022,79
2205197,10
435
441004,14
2205248,20
436
441039,19
2205279,49
437
441035,44
2205306,51
438
440990,23
2205336,32
439
441052,11
2205432,00
440
441060,92
2205455,94
441
441054,48
2205500,77
442
441014,47
2205521,15
443
441064,31
2205554,57
444
441093,35
2205554,96
445
441089,44
2205571,95
446
441054,36
2205574,91
447
441007,44
2205570,04
448
440999,51
2205668,92
449
440968,16
2205657,09
450
440945,09
2205504,87
451
440927,11
2205510,54
452
440841,76
2205523,39
453
440839,90
2205451,38
454
440824,16
2205433,67
455
440666,51
2205386,90
456
440659,43
2205434,59
457
440624,88
2205437,79
458
440598,77
2205499,70
459
440500,87
2205468,00
460
440512,27
2205428,81
461
440491,21
2205406,79
462
440417,49
2205390,57
463
440375,08
2205480,79
464
440337,62
2205485,83
465
440328,14
2205462,86
466
440319,67
2205341,97
467
440221,02
2205221,32
468
440182,18
2205188,17
469
440139,90
2205135,61
470
440181,99
2205105,76
471
440106,04
2205022,16
472
440094,00
2205030,63
473
440073,16
2205047,23
474
440055,53
2204984,62
475
440083,64
2204975,96
476
440109,68
2204963,83
477
440118,70
2204973,56
478
440138,66
2204997,95
479
440181,51
2205042,06
480
440211,33
2205092,81
481
440223,23
2205073,26
482
440234,81
2205053,87
483
440245,64
2205033,73
484
440252,90
2205020,94
485
440256,02
2205015,56
486
440281,66
2204972,41
487
440281,84
2204968,97
488
440281,59
2204967,26
81
440283,63
2204861,15
80
440341,31
2204871,19
79
440390,73
2204879,79
78
440460,63
2204889,79
77
440463,46
2204893,05
76
440450,92
2204985,55
75
440441,39
2205046,56
74
440441,70
2205057,40
73
440446,98
2205064,56
72
440451,01
2205067,82
71
440461,00
2205074,40
70
440477,24
2205078,95
69
440505,90
2205086,50
489
440583,18
2205105,37
13
440582,02
2205108,56
12
440578,27
2205118,83
490
440651,01
2205137,15
491
440650,95
2205137,52
492
440648,91
2205150,20
493
440647,58
2205158,08
494
440646,26
2205165,60
495
440644,46
2205175,58
496
440642,97
2205183,69
497
440642,10
2205188,19
498
440641,16
2205193,64
499
440663,17
2205199,07
500
440662,72
2205200,79
501
440665,33
2205201,43
502
440665,78
2205199,66
503
440669,78
2205200,55
504
440698,03
2205197,29
505
440767,31
2205214,61
506
440775,91
2205217,69
507
440771,38
2205236,09
508
440811,35
2205246,41
509
440840,22
2205256,28
510
440843,80
2205254,85
511
440861,60
2205188,91
10
440861,76
2205188,95
9
440910,84
2205200,35
8
440921,35
2205163,97
512
440926,65
2205138,40
233
440956,77
2205152,50
Р-II.4
148
442482,70
2205175,57
513
442460,15
2205194,62
514
442441,79
2205231,95
515
442462,04
2205275,83
516
442445,74
2205292,86
517
442393,15
2205347,81
518
442440,29
2205525,94
519
442500,29
2205588,15
520
442541,94
2205683,01
521
442535,28
2205765,27
522
442449,00
2205788,00
523
441932,60
2205716,73
524
441931,68
2205713,69
525
441933,66
2205706,43
526
441933,36
2205693,27
527
441929,55
2205683,65
528
441926,54
2205681,52
529
441920,62
2205680,68
530
441911,97
2205680,80
531
441896,56
2205668,83
532
441887,34
2205666,59
533
441883,92
2205665,81
534
441865,77
2205662,58
535
441841,00
2205658,19
536
441836,98
2205657,58
537
441812,00
2205655,06
538
441803,84
2205654,37
539
441794,52
2205654,79
540
441770,78
2205645,24
163
441720,12
2205611,62
162
441736,89
2205573,81
161
441753,42
2205553,25
160
441763,40
2205518,96
159
441785,37
2205483,42
158
441791,88
2205461,07
157
441802,56
2205444,92
156
441826,52
2205470,57
155
441850,50
2205423,15
154
441855,77
2205404,28
153
441883,13
2205345,62
152
441911,70
2205282,58
151
441920,42
2205280,29
150
442175,62
2205180,59
149
442315,68
2205185,88
148
442482,70
2205175,57
Р-III.1
43
441473,25
2204161,58
42
441473,04
2204207,40
41
441485,88
2204212,97
40
441498,46
2204216,26
541
441497,43
2204219,52
542
441494,25
2204235,21
543
441493,86
2204236,55
544
441493,35
2204238,87
545
441492,70
2204244,56
546
441492,27
2204249,62
547
441491,97
2204251,92
548
441490,66
2204259,38
549
441491,76
2204270,76
550
441486,71
2204287,22
551
441483,03
2204299,24
552
441471,75
2204314,16
553
441459,30
2204356,27
554
441457,39
2204363,35
555
441456,23
2204368,82
556
441447,99
2204389,99
557
441424,85
2204409,65
558
441413,34
2204415,73
559
441397,26
2204407,84
560
441399,71
2204389,30
561
441400,17
2204379,55
562
441414,78
2204386,57
563
441433,30
2204348,71
564
441435,60
2204342,40
565
441439,49
2204326,39
566
441441,66
2204312,31
567
441425,60
2204306,15
568
441411,67
2204297,42
569
441399,60
2204303,39
570
441388,11
2204326,71
571
441369,38
2204364,74
572
441346,30
2204411,50
573
441341,70
2204422,20
574
441340,41
2204426,70
286
441330,51
2204438,93
285
441325,42
2204434,92
284
441310,68
2204428,62
283
441308,57
2204433,61
282
441278,20
2204420,80
281
441280,20
2204415,59
280
441209,15
2204382,24
279
441188,73
2204370,51
575
441192,85
2204363,63
576
441190,78
2204361,19
577
441170,62
2204331,82
578
441199,89
2204329,37
579
441237,09
2204316,92
580
441241,69
2204315,33
581
441245,78
2204310,74
582
441270,00
2204262,74
583
441273,64
2204258,65
584
441278,64
2204251,57
585
441282,18
2204246,20
586
441284,87
2204241,27
587
441287,80
2204234,16
588
441291,15
2204236,10
589
441293,25
2204236,22
590
441293,88
2204234,26
591
441298,71
2204228,29
592
441305,04
2204219,60
593
441309,17
2204224,18
594
441349,40
2204200,79
595
441355,15
2204207,44
596
441361,40
2204200,94
597
441373,95
2204186,55
598
441381,87
2204191,97
599
441402,65
2204206,19
600
441399,29
2204215,87
601
441396,94
2204227,67
602
441397,31
2204235,11
603
441423,93
2204234,71
604
441424,01
2204234,01
605
441423,13
2204226,14
606
441424,49
2204216,99
607
441427,88
2204206,79
608
441440,17
2204210,51
609
441447,23
2204195,00
610
441467,01
2204159,07
43
441473,25
2204161,58
Р-III.2
Внешний контур
81
440283,63
2204861,15
488
440281,59
2204967,26
487
440281,84
2204968,97
486
440281,66
2204972,41
485
440256,02
2205015,56
484
440252,90
2205020,94
483
440245,64
2205033,73
482
440234,81
2205053,87
481
440223,23
2205073,26
480
440211,33
2205092,81
479
440181,51
2205042,06
478
440138,66
2204997,95
477
440118,70
2204973,56
476
440109,68
2204963,83
475
440083,64
2204975,96
474
440055,53
2204984,62
611
440055,34
2204983,93
358
439884,75
2204832,31
357
439923,44
2204826,08
356
439930,67
2204821,38
355
439931,85
2204820,61
354
439974,04
2204814,97
353
439974,74
2204815,61
352
439998,40
2204818,83
351
440048,88
2204825,70
83
440066,93
2204828,15
82
440093,52
2204831,77
81
440283,63
2204861,15
Внутренний контур
30
440208,41
2204860,66
31
440250,24
2204867,53
32
440236,13
2204953,46
33
440177,60
2204943,86
34
440182,80
2204912,13
35
440199,51
2204914,87
30
440208,41
2204860,66
Р-III.3
612
440484,10
2203809,78
613
440461,99
2203963,41
614
440431,72
2203995,71
615
440393,44
2204034,34
616
440374,57
2204054,14
617
440374,83
2204054,40
618
440320,83
2204108,74
619
440288,73
2204140,98
620
440279,11
2204148,97
621
440258,97
2204164,12
622
440250,56
2204168,09
623
440230,50
2204185,76
624
440222,44
2204191,70
625
440145,05
2204251,27
626
440125,98
2204224,70
627
440140,89
2204209,58
628
440154,59
2204068,63
629
440157,29
2204029,98
630
440020,41
2203945,83
631
439951,27
2203903,32
632
439956,81
2203893,86
633
439961,28
2203886,22
634
440163,97
2203997,87
635
440279,62
2203932,78
636
440324,19
2203886,67
637
440390,17
2203913,13
638
440436,72
2203832,70
639
440441,28
2203825,00
640
440449,16
2203811,70
641
440450,56
2203809,20
612
440484,10
2203809,78
Р-IV.1
642
441518,22
2204167,17
36
441514,32
2204178,04
43
441473,25
2204161,58
610
441467,01
2204159,07
609
441447,23
2204195,00
608
441440,17
2204210,51
607
441427,88
2204206,79
606
441424,49
2204216,99
605
441423,13
2204226,14
604
441424,01
2204234,01
603
441423,93
2204234,71
602
441397,31
2204235,11
601
441396,94
2204227,67
600
441399,29
2204215,87
599
441402,65
2204206,19
598
441381,87
2204191,97
597
441373,95
2204186,55
596
441361,40
2204200,94
595
441355,15
2204207,44
594
441349,40
2204200,79
593
441309,17
2204224,18
592
441305,04
2204219,60
591
441298,71
2204228,29
590
441293,88
2204234,26
589
441293,25
2204236,22
588
441291,15
2204236,10
587
441287,80
2204234,16
586
441284,87
2204241,27
585
441282,18
2204246,20
584
441278,64
2204251,57
583
441273,64
2204258,65
582
441270,00
2204262,74
643
441268,23
2204266,25
581
441245,78
2204310,74
580
441241,69
2204315,33
579
441237,09
2204316,92
578
441199,89
2204329,37
577
441170,62
2204331,82
576
441190,78
2204361,19
575
441192,85
2204363,63
279
441188,73
2204370,51
278
441176,70
2204390,60
277
441169,46
2204402,98
276
441164,48
2204400,08
275
441097,98
2204359,68
274
441034,59
2204332,63
273
440975,30
2204322,62
272
440928,09
2204321,66
271
440899,83
2204336,02
270
440867,29
2204413,71
22
440776,75
2204374,55
21
440624,74
2204353,09
350
440621,69
2204352,37
349
440562,75
2204338,31
644
440561,51
2204336,20
645
440571,70
2204301,09
646
440585,78
2204303,79
647
440603,38
2204259,45
648
440606,69
2204257,80
649
440612,50
2204250,78
650
440632,38
2204203,77
651
440630,76
2204202,51
652
440642,94
2204176,11
653
440654,96
2204149,92
654
440672,34
2204104,08
655
440695,18
2204068,75
656
440719,35
2204073,64
657
440736,69
2204074,37
658
440751,21
2204077,79
659
440775,66
2204083,53
660
440781,36
2204085,11
661
440820,41
2204095,11
662
440823,75
2204086,12
663
440834,06
2204059,85
664
440835,63
2204060,45
665
440838,24
2204054,07
666
440840,93
2204055,07
667
440870,78
2203987,99
668
440892,91
2203932,37
669
440970,61
2203966,63
670
440968,02
2203972,25
671
440985,59
2203979,93
672
440987,86
2203974,32
673
441168,21
2204055,51
674
441264,00
2204082,56
675
441262,41
2204087,43
676
441279,63
2204092,71
677
441281,23
2204087,84
678
441304,47
2204092,03
642
441518,22
2204167,17
Р-IV.2
511
440861,60
2205188,91
510
440843,80
2205254,85
509
440840,22
2205256,28
508
440811,35
2205246,41
507
440771,38
2205236,09
506
440775,91
2205217,69
505
440767,31
2205214,61
504
440698,03
2205197,29
503
440669,78
2205200,55
502
440665,78
2205199,66
501
440665,33
2205201,43
500
440662,72
2205200,79
499
440663,17
2205199,07
498
440641,16
2205193,64
497
440642,10
2205188,19
496
440642,97
2205183,69
495
440644,46
2205175,58
494
440646,26
2205165,60
493
440647,58
2205158,08
492
440648,91
2205150,20
491
440650,95
2205137,52
490
440651,01
2205137,15
11
440696,57
2205148,63
511
440861,60
2205188,91
Р-IV.3
679
440611,84
2203818,95
680
440610,82
2203824,65
681
440603,84
2203867,49
682
440599,91
2203891,66
683
440595,93
2203916,09
684
440597,96
2203916,80
685
440593,51
2203923,39
686
440588,33
2203938,79
687
440584,23
2203951,56
688
440585,86
2203997,06
689
440585,88
2203997,65
690
440595,85
2204027,59
691
440606,00
2204058,07
692
440616,15
2204088,57
693
440626,29
2204119,03
694
440631,13
2204133,59
695
440617,23
2204164,58
696
440642,94
2204176,11
651
440630,76
2204202,51
650
440632,38
2204203,77
649
440612,50
2204250,78
648
440606,69
2204257,80
647
440603,38
2204259,45
646
440585,78
2204303,79
645
440571,70
2204301,09
644
440561,51
2204336,20
349
440562,75
2204338,31
348
440352,54
2204275,02
347
440152,26
2204269,80
625
440145,05
2204251,27
624
440222,44
2204191,70
623
440230,50
2204185,76
622
440250,56
2204168,09
621
440258,97
2204164,12
620
440279,11
2204148,97
619
440288,73
2204140,98
618
440320,83
2204108,74
617
440374,83
2204054,40
616
440374,57
2204054,14
615
440393,44
2204034,34
614
440431,72
2203995,71
613
440461,99
2203963,41
697
440484,10
2203809,78
698
440551,90
2203810,97
679
440611,84
2203818,95
Р-IV.4
699
441620,22
2204203,03
700
441604,43
2204246,88
701
441586,18
2204287,70
702
441559,38
2204356,39
703
441546,98
2204390,22
704
441550,69
2204391,53
705
441539,48
2204415,99
706
441528,88
2204441,16
707
441524,72
2204451,44
708
441516,04
2204472,89
709
441509,50
2204489,08
710
441501,95
2204506,49
711
441501,77
2204507,47
712
441499,85
2204526,66
713
441451,46
2204520,36
714
441454,39
2204498,54
715
441444,75
2204494,30
716
441404,41
2204452,21
288
441360,05
2204493,11
287
441313,33
2204459,90
286
441330,51
2204438,93
574
441340,41
2204426,70
573
441341,70
2204422,20
572
441346,30
2204411,50
571
441369,38
2204364,74
570
441388,11
2204326,71
569
441399,60
2204303,39
568
441411,67
2204297,42
567
441425,60
2204306,15
566
441441,66
2204312,31
565
441439,49
2204326,39
564
441435,60
2204342,40
563
441433,30
2204348,71
562
441414,78
2204386,57
561
441400,17
2204379,55
560
441399,71
2204389,30
559
441397,26
2204407,84
558
441413,34
2204415,73
557
441424,85
2204409,65
556
441447,99
2204389,99
555
441456,23
2204368,82
554
441457,39
2204363,35
553
441459,30
2204356,27
552
441471,75
2204314,16
551
441483,03
2204299,24
550
441486,71
2204287,22
549
441491,76
2204270,76
548
441490,66
2204259,38
547
441491,97
2204251,92
546
441492,27
2204249,62
545
441492,70
2204244,56
544
441493,35
2204238,87
543
441493,86
2204236,55
542
441494,25
2204235,21
541
441497,43
2204219,52
40
441498,46
2204216,26
39
441498,93
2204214,80
38
441502,04
2204215,62
37
441513,70
2204179,95
36
441514,32
2204178,04
642
441518,22
2204167,17
699
441620,22
2204203,03
Р-IV.5
668
440892,91
2203932,37
667
440870,78
2203987,99
666
440840,93
2204055,07
665
440838,24
2204054,07
664
440835,63
2204060,45
663
440834,06
2204059,85
717
440829,18
2204072,29
718
440755,46
2204044,54
719
440744,50
2204040,09
720
440728,48
2204033,57
721
440726,84
2204036,96
722
440712,37
2204030,38
723
440713,59
2204027,56
724
440695,81
2204020,34
725
440693,49
2204026,26
726
440690,81
2204033,09
727
440690,04
2204035,10
728
440681,68
2204032,00
729
440667,46
2204026,85
689
440585,88
2203997,65
688
440585,86
2203997,06
687
440584,23
2203951,56
686
440588,33
2203938,79
685
440593,51
2203923,39
684
440597,96
2203916,80
683
440595,93
2203916,09
682
440599,91
2203891,66
681
440603,84
2203867,49
680
440610,82
2203824,65
679
440611,84
2203818,95
730
440685,85
2203841,07
668
440892,91
2203932,37
Р-IV.6
641
440450,56
2203809,20
640
440449,16
2203811,70
639
440441,28
2203825,00
638
440436,72
2203832,70
637
440390,17
2203913,13
636
440324,19
2203886,67
635
440279,62
2203932,78
634
440163,97
2203997,87
633
439961,28
2203886,22
632
439956,81
2203893,86
631
439951,27
2203903,32
630
440020,41
2203945,83
629
440157,29
2204029,98
628
440154,59
2204068,63
627
440140,89
2204209,58
626
440125,98
2204224,70
625
440145,05
2204251,27
347
440152,26
2204269,80
346
440096,79
2204257,63
345
440095,38
2204255,45
344
440088,24
2204245,00
343
440088,02
2204244,66
342
440077,01
2204227,04
341
440067,09
2204212,06
340
440067,04
2204211,99
339
440056,79
2204196,22
338
440051,48
2204188,03
337
440043,87
2204176,35
336
440031,15
2204158,35
335
440022,16
2204146,38
334
439881,47
2203915,08
333
439822,65
2203818,37
332
439814,69
2203805,29
731
439819,76
2203798,15
641
440450,56
2203809,20
Р-IV.7
732
440829,18
2204072,29
662
440823,75
2204086,12
661
440820,41
2204095,11
660
440781,36
2204085,11
659
440775,66
2204083,53
658
440751,21
2204077,79
657
440736,69
2204074,37
656
440719,35
2204073,64
655
440695,18
2204068,75
654
440672,34
2204104,08
653
440654,96
2204149,92
652
440642,94
2204176,11
695
440617,23
2204164,58
694
440631,13
2204133,59
693
440626,29
2204119,03
692
440616,15
2204088,57
691
440606,00
2204058,07
690
440595,85
2204027,59
689
440585,88
2203997,65
729
440667,46
2204026,85
728
440681,68
2204032,00
727
440690,04
2204035,10
726
440690,81
2204033,09
725
440693,49
2204026,26
724
440695,81
2204020,34
723
440713,59
2204027,56
722
440712,37
2204030,38
721
440726,84
2204036,96
720
440728,48
2204033,57
719
440744,50
2204040,09
718
440755,46
2204044,54
732
440829,18
2204072,29
Р-IV.8
733
441930,80
2204327,70
734
441924,24
2204343,74
735
441920,30
2204353,37
736
441917,51
2204360,19
737
441886,18
2204436,77
738
441884,77
2204440,20
739
441883,42
2204439,70
740
441864,58
2204458,31
741
441851,84
2204453,16
742
441833,10
2204499,67
743
441828,57
2204501,09
744
441804,91
2204526,35
745
441829,07
2204551,68
746
441832,66
2204574,24
747
441834,27
2204582,74
302
441833,12
2204608,56
301
441826,67
2204610,00
300
441814,38
2204662,67
299
441779,21
2204708,69
298
441748,22
2204739,94
297
441728,14
2204794,48
296
441496,66
2204710,51
295
441484,66
2204707,46
294
441518,79
2204680,41
293
441485,44
2204668,16
292
441476,97
2204667,24
291
441423,69
2204651,68
290
441390,01
2204606,24
289
441424,41
2204538,86
288
441360,05
2204493,11
716
441404,41
2204452,21
715
441444,75
2204494,30
714
441454,39
2204498,54
713
441451,46
2204520,36
712
441499,85
2204526,66
711
441501,77
2204507,47
710
441501,95
2204506,49
709
441509,50
2204489,08
708
441516,04
2204472,89
707
441524,72
2204451,44
706
441528,88
2204441,16
705
441539,48
2204415,99
704
441550,69
2204391,53
703
441546,98
2204390,22
702
441559,38
2204356,39
701
441586,18
2204287,70
700
441604,43
2204246,88
748
441654,10
2204266,25
749
441670,91
2204241,10
750
441673,22
2204223,08
733
441930,80
2204327,70
Р-IV.9
330
442345,42
2204497,70
329
442341,84
2204504,94
328
442341,34
2204507,86
327
442341,79
2204512,88
326
442342,36
2204519,16
325
442344,23
2204524,50
324
442336,58
2204542,81
323
442299,12
2204534,86
322
442279,93
2204559,56
321
442263,63
2204580,55
320
442241,68
2204588,93
319
442233,76
2204591,61
318
442088,56
2204827,10
317
442006,78
2204808,26
316
442004,55
2204819,52
315
441990,30
2204816,64
314
441986,22
2204805,74
313
441956,80
2204797,88
312
441902,46
2204786,13
311
441894,52
2204783,07
310
441887,38
2204774,18
309
441880,25
2204765,13
308
441869,43
2204751,76
307
441889,16
2204638,63
306
441868,70
2204627,53
305
441865,66
2204622,55
304
441855,75
2204618,18
303
441853,85
2204619,68
302
441833,12
2204608,56
747
441834,27
2204582,74
746
441832,66
2204574,24
745
441829,07
2204551,68
744
441804,91
2204526,35
743
441828,57
2204501,09
742
441833,10
2204499,67
741
441851,84
2204453,16
740
441864,58
2204458,31
739
441883,42
2204439,70
738
441884,77
2204440,20
737
441886,18
2204436,77
736
441917,51
2204360,19
735
441920,30
2204353,37
734
441924,24
2204343,74
751
441930,80
2204327,70
752
442336,00
2204492,29
753
442345,08
2204497,40
330
442345,42
2204497,70
Р-IV.10
754
443182,99
2204837,97
54
443153,94
2204870,51
53
443142,17
2204901,29
52
443155,56
2204913,12
51
443170,76
2204926,56
266
443084,03
2204954,56
265
443074,42
2204957,66
264
443036,40
2204969,94
263
442940,88
2205000,78
262
442888,85
2205017,58
261
442851,33
2205029,69
260
442799,71
2205046,36
259
442711,68
2205074,78
258
442675,78
2205086,37
257
442673,42
2205087,13
256
442673,36
2205086,78
255
442670,75
2205070,14
254
442651,25
2205071,84
269
442669,76
2205013,64
268
442358,29
2204852,41
755
442467,81
2204552,50
754
443182,99
2204837,97