Приказ Минкультуры России от 17.09.2025 N 1668
МИНИСТЕРСТВО КУЛЬТУРЫ РОССИЙСКОЙ ФЕДЕРАЦИИ
ПРИКАЗ
от 17 сентября 2025 г. N 1668
О ВНЕСЕНИИ ИЗМЕНЕНИЙ
В ПРИЛОЖЕНИЕ К ПРИКАЗУ МИНИСТЕРСТВА КУЛЬТУРЫ
РОССИЙСКОЙ ФЕДЕРАЦИИ ОТ 18 ИЮНЯ 2024 Г. N 1168
"ОБ УТВЕРЖДЕНИИ ТРЕБОВАНИЙ К ОСУЩЕСТВЛЕНИЮ ДЕЯТЕЛЬНОСТИ
И ГРАДОСТРОИТЕЛЬНОМУ РЕГЛАМЕНТУ В ГРАНИЦАХ ТЕРРИТОРИИ
ОБЪЕКТА КУЛЬТУРНОГО НАСЛЕДИЯ ФЕДЕРАЛЬНОГО
ЗНАЧЕНИЯ - ДОСТОПРИМЕЧАТЕЛЬНОЕ МЕСТО "ДРЕВНИЙ РАДОНЕЖ,
XIV - XV ВВ.", РАСПОЛОЖЕННОГО В СЕРГИЕВО-ПОСАДСКОМ ГОРОДСКОМ
ОКРУГЕ МОСКОВСКОЙ ОБЛАСТИ"
В соответствии с подпунктом 1 пункта 3 статьи 5.1 Федерального закона от 25 июня 2002 г. N 73-ФЗ "Об объектах культурного наследия (памятниках истории и культуры) народов Российской Федерации" и пунктом 1 Положения о Министерстве культуры Российской Федерации, утвержденного постановлением Правительства Российской Федерации от 20 июля 2011 г. N 590, приказываю:
1. Внести изменения в приложение к приказу Министерства культуры Российской Федерации от 18 июня 2024 г. N 1168 "Об утверждении требований к осуществлению деятельности и градостроительному регламенту в границах территории объекта культурного наследия федерального значения - достопримечательное место "Древний Радонеж, XIV - XV вв.", расположенного в Сергиево-Посадском городском округе Московской области" (зарегистрирован Министерством юстиции Российской Федерации 23 сентября 2024 г., регистрационный N 79556) согласно приложению к настоящему приказу.
2. Контроль за исполнением настоящего приказа возложить на заместителя Министра культуры Российской Федерации, курирующего деятельность Департамента государственной охраны культурного наследия.
Министр
О.Б.ЛЮБИМОВА
Приложение
к приказу Министерства культуры
Российской Федерации
от 17 сентября 2025 г. N 1668
ИЗМЕНЕНИЯ,
ВНОСИМЫЕ В ПРИЛОЖЕНИЕ К ПРИКАЗУ МИНИСТЕРСТВА КУЛЬТУРЫ
РОССИЙСКОЙ ФЕДЕРАЦИИ ОТ 18 ИЮНЯ 2024 Г. N 1168
"ОБ УТВЕРЖДЕНИИ ТРЕБОВАНИЙ К ОСУЩЕСТВЛЕНИЮ ДЕЯТЕЛЬНОСТИ
И ГРАДОСТРОИТЕЛЬНОМУ РЕГЛАМЕНТУ В ГРАНИЦАХ ТЕРРИТОРИИ
ОБЪЕКТА КУЛЬТУРНОГО НАСЛЕДИЯ ФЕДЕРАЛЬНОГО
ЗНАЧЕНИЯ - ДОСТОПРИМЕЧАТЕЛЬНОЕ МЕСТО "ДРЕВНИЙ РАДОНЕЖ,
XIV - XV ВВ.", РАСПОЛОЖЕННОГО В СЕРГИЕВО-ПОСАДСКОМ
ГОРОДСКОМ ОКРУГЕ МОСКОВСКОЙ ОБЛАСТИ"
1. Подпункт 21.3 пункта 21 изложить в следующей редакции:
"21.3. Строительство и реконструкция объектов социального, культурного, религиозного и бытового обслуживания (для участков Р 5.1, Р 5.2, Р 5.3, Р 5.4, Р 5.5, Р 5.7, Р 5.8, Р 5.9, Р 5.10, Р 5.11, Р 5.12, предусмотренных картой (схемой) требований к осуществлению деятельности и градостроительному регламенту в границах территории Достопримечательного места, содержащейся в приложении к настоящим Требованиям (далее - карта (схема).".
2. Пункт 21 дополнить подпунктом 21.6 следующего содержания:
"21.6. Строительство и реконструкция зданий с ограничением высоты до 21 м до верха кровли, протяженностью по красной линии до 16 м (для участка Р 5.12, предусмотренного картой (схемой).".
3. Карту (схему) требований к осуществлению деятельности и градостроительному регламенту в границах территории Достопримечательного места изложить в редакции согласно приложению к настоящим изменениям.
Приложение
к изменениям, вносимым в приложение
к приказу Министерства культуры
Российской Федерации
от 18 июня 2024 г. N 1168
"Об утверждении требований к осуществлению
деятельности и градостроительному
регламенту в границах территории объекта
культурного наследия федерального
значения - достопримечательное место
"Древний Радонеж, XIV - XV вв.",
расположенного в Сергиево-Посадском
городском округе Московской области",
утвержденным приказом
Министерства культуры
Российской Федерации
от 17 сентября 2025 г. N 1668
"Приложение
к требованиям к осуществлению
деятельности и градостроительному
регламенту в границах территории
объекта культурного наследия
федерального значения -
достопримечательное место
"Древний Радонеж, XIV - XV вв.",
расположенного в Сергиево-Посадском
городском округе Московской области,
утвержденным приказом
Министерства культуры
Российской Федерации
от 18 июня 2024 г. N 1168
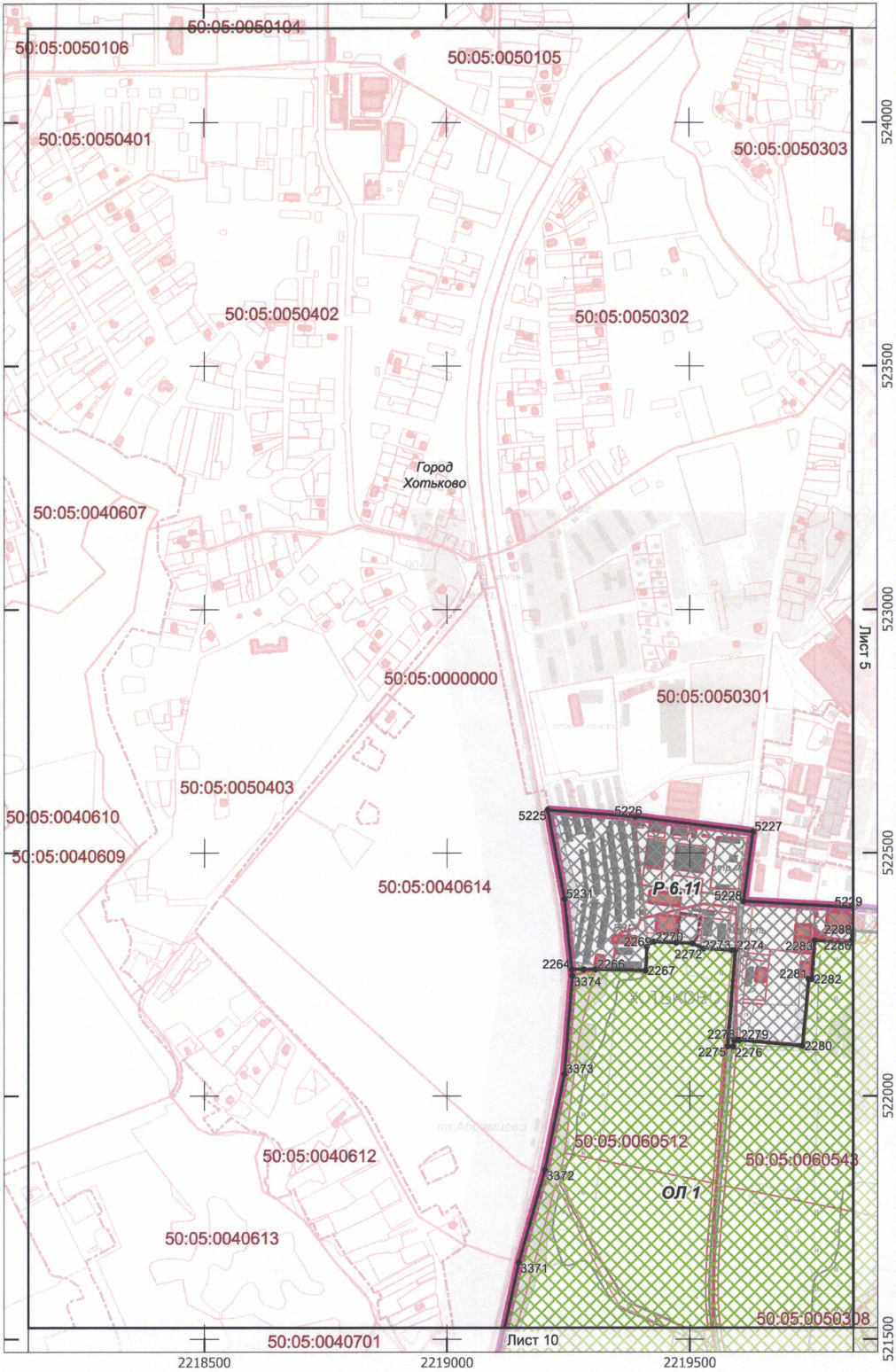
КАРТА (СХЕМА) ТРЕБОВАНИЙ К ОСУЩЕСТВЛЕНИЮ ДЕЯТЕЛЬНОСТИ
И ГРАДОСТРОИТЕЛЬНОМУ РЕГЛАМЕНТУ В ГРАНИЦАХ ТЕРРИТОРИИ
ДОСТОПРИМЕЧАТЕЛЬНОГО МЕСТА


УСЛОВНЫЕ ОБОЗНАЧЕНИЯ:

граница территории Достопримечательного места

границы регламентных участков
![]()
номера поворотных точек

границы земельных участков

границы населенных пунктов

границы муниципальных образований
Требования к осуществлению деятельности и градостроительному регламенту в границах территории Достопримечательного места

режим К

режим Т

режим О

режим ОЛ 1

режим ОЛ 2

режим Р 1

режим Р 2

режим Р 3

режим Р 4

режим Р 5

режим Р 6

режим Р 7

режим Р 8

режим Р 9

режим Р 10

режим Р 11
Лист 1

Лист 2

Лист 3

Лист 4

Лист 5

Лист 6

Лист 7

Лист 8

Лист 9

Лист 10

Лист 11

Лист 12

Лист 13

Лист 14

Лист 15

Лист 16

Лист 17

Лист 18

Лист 19

Лист 20

Лист 21

Лист 22

Лист 23

Лист 24

Лист 25

Лист 26

Лист 27

".